Housefix Studio
NUESTRA HISTORIA
Somos una empresa con más de 20 años de presencia en el mercado de la construcción. Hemos desarrollado, administrado y comercializado edificios y todo tipo de propiedades en capital federal y zona norte del gran buenos aires. En este lapso de tiempo, hemos brindado los servicios de mejora y reparación de unidades en malas condiciones y ahora anexamos a nuestros ofrecimientos la preparación de unidades a la venta. Conocé con más detalle nuestro servicio de Restauración de Vivienda para la venta.
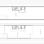
olaguer y Feliú 1634
Se trata de un complejo multi-familiar de 6 unidades de vivienda divididas en 2 bloques. Esta condición genera excelentes cualidades de iluminación y ventilación para todas las unidades. El bloque de frente esta elevado y las unidades A, B y C, se desarrollan en primer y segundo piso + terraza. Sobre la planta baja y el espacio comprendido entre la línea de frente y el bloque trasero, se desarrollan las cocheras. El bloque trasero, y las unidades D, E y F, se desarrollan sobre planta baja, primer y segundo piso. El proyecto busco priorizar la funcionalidad en su diseño, sin dejar de lado las tendencias actuales.
Dos últimas unidades disponibles
02 bloques
06 unidades
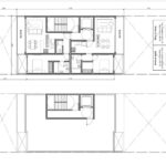
maipú 550
Se proyecta un edificio con 14 semipisos de alto diseño + calidad constructiva. Poseen espacios confortables y amplios, expansiones propias con balcón y cocheras. Ubicado estratégicamente sobre Av.Maipú, zona Florida, Vte. López, cerca de todos los comercios.
14 UNIDADEs
47-51 METROS CUADRADOS DE SUPERFICIE
14 cocheras
contactanos hoy
Estamos disponibles para todo tipo de consultas, vía redes, email ó celular.
cotizá sin cargo
Brindamos un balance completo entre necesidades y costos.
renová y vendé
Aprovechá nuestra experiencia en el rubro para tu beneficio.
empresas con las que trabajamos
Laura Jorge Propiedades | Tizado Vicente Lopez | Marin Propiedades | Trenomi S.A (estudio arquitectura) | Carlos. A. Vassallo (Asesor Inmobiliario) | Ruiz Porpiedades | Materiales Yrigoyen | Corralon Florida | Hector de Marzi (estudio arquitectura) | Fernando de Tomaso (asesoría financiera) | Codoni Inmuebles | María del Pilar Morán & Asociados (Estudio Contable) | Julie Pannecoucke IPMGLLC (Arq. Miami USA) | First Service (MIAMI USA) | Soch Group (Realtor MIAMI USA), entre otros.
flipping
Visitá nuestra sección orientada a reformar
y renovar para vender mejor.
contactanos
Avenida Libertador 1924 piso 17 G
Buenos Aires, Argentina
(+54 9 11) 1130502216
(+54 9 11) 1139105517
housefixsa23@gmail.com
Estamos ubicados en Olivos, zona Norte de la Ciudad de Buenos Aires. Un lugar conveniente para quien quiera acercarse a nuestras oficinas. También podés contactarnos a través de nuestras redes o por mail.




























